Đăng nhập
Trang chủ
Giới thiệu
Giới thiệu công ty
Lịch sử hình thành
Sứ mệnh và tầm nhìn
Giá trị cốt lõi
Nguồn lực
Bộ phận kinh doanh
Phê chuẩn
Trách nhiệm xã hội
Dịch vụ
Bảo dưỡng ngoại trường
Bảo dưỡng nội trường
Cung ứng phụ tùng
Bảo dưỡng nội thất
Đào tạo kỹ thuật
Các dịch vụ khác
Tin tức
Tin tức
Chuyển đổi số
Khách hàng
Việc làm
Chào giá
Liên hệ
Chào giá
Trang chủ
Chào giá
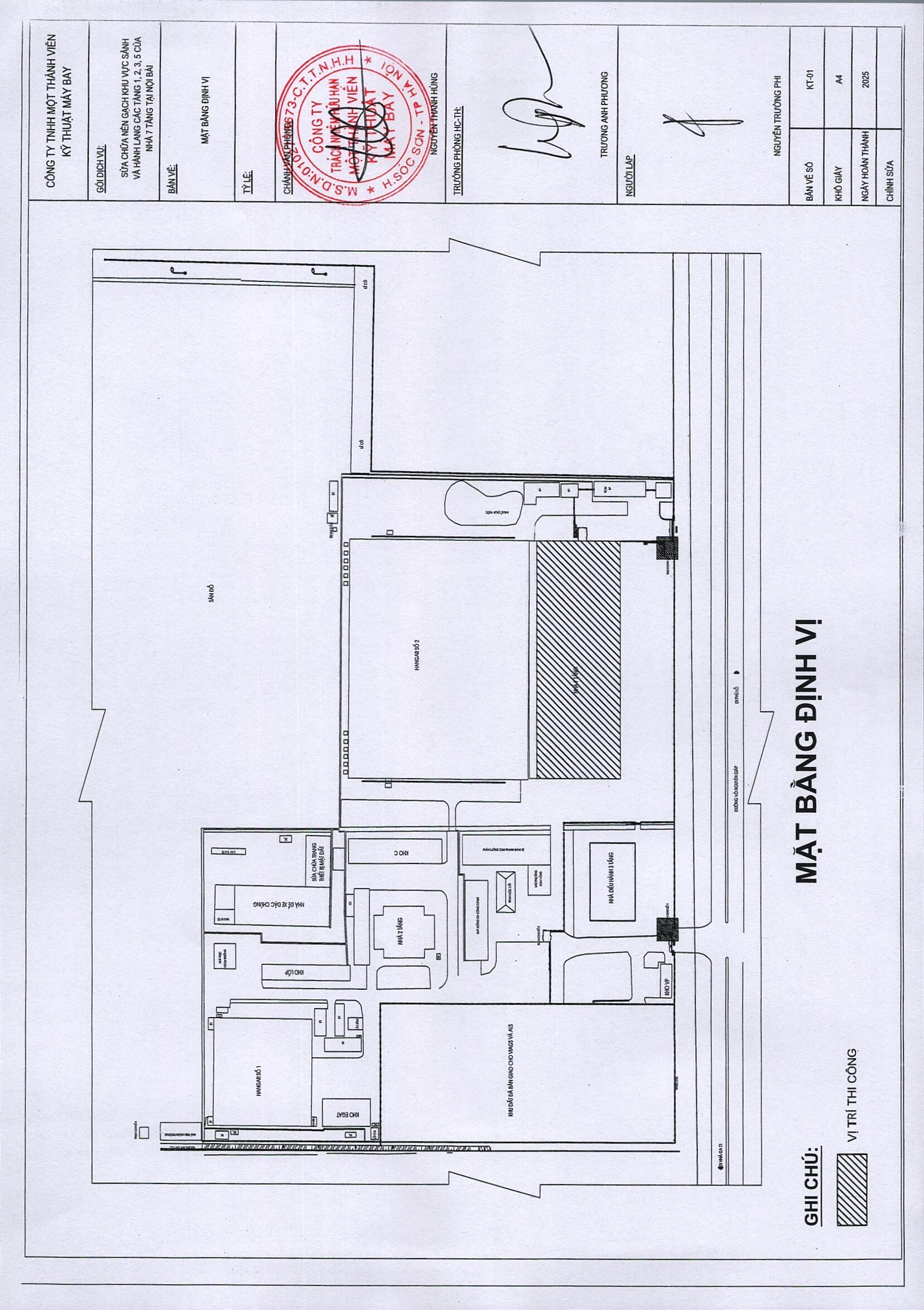
Yêu cầu chào giá gói dịch vụ “Sửa chữa nền gạch khu vực sảnh và hành lang các tầng 1, 2, 3, 5 của nhà 7 tầng tại Nội Bài”
Yêu cầu chào giá gói dịch vụ “Sửa chữa nền gạch khu vực sảnh và hành lang các tầng 1, 2, 3, 5 của nhà 7 tầng tại Nội Bài”
Chào giá
11 Tháng 4 2025
Trang chủ
Giới thiệu
Giới thiệu công ty
Lịch sử hình thành
Sứ mệnh và tầm nhìn
Giá trị cốt lõi
Nguồn lực
Bộ phận kinh doanh
Phê chuẩn
Trách nhiệm xã hội
Dịch vụ
Bảo dưỡng ngoại trường
Bảo dưỡng nội trường
Cung ứng phụ tùng
Bảo dưỡng nội thất
Đào tạo kỹ thuật
Các dịch vụ khác
Tin tức
Tin tức
Chuyển đổi số
Khách hàng
Việc làm
Chào giá
Liên hệ